
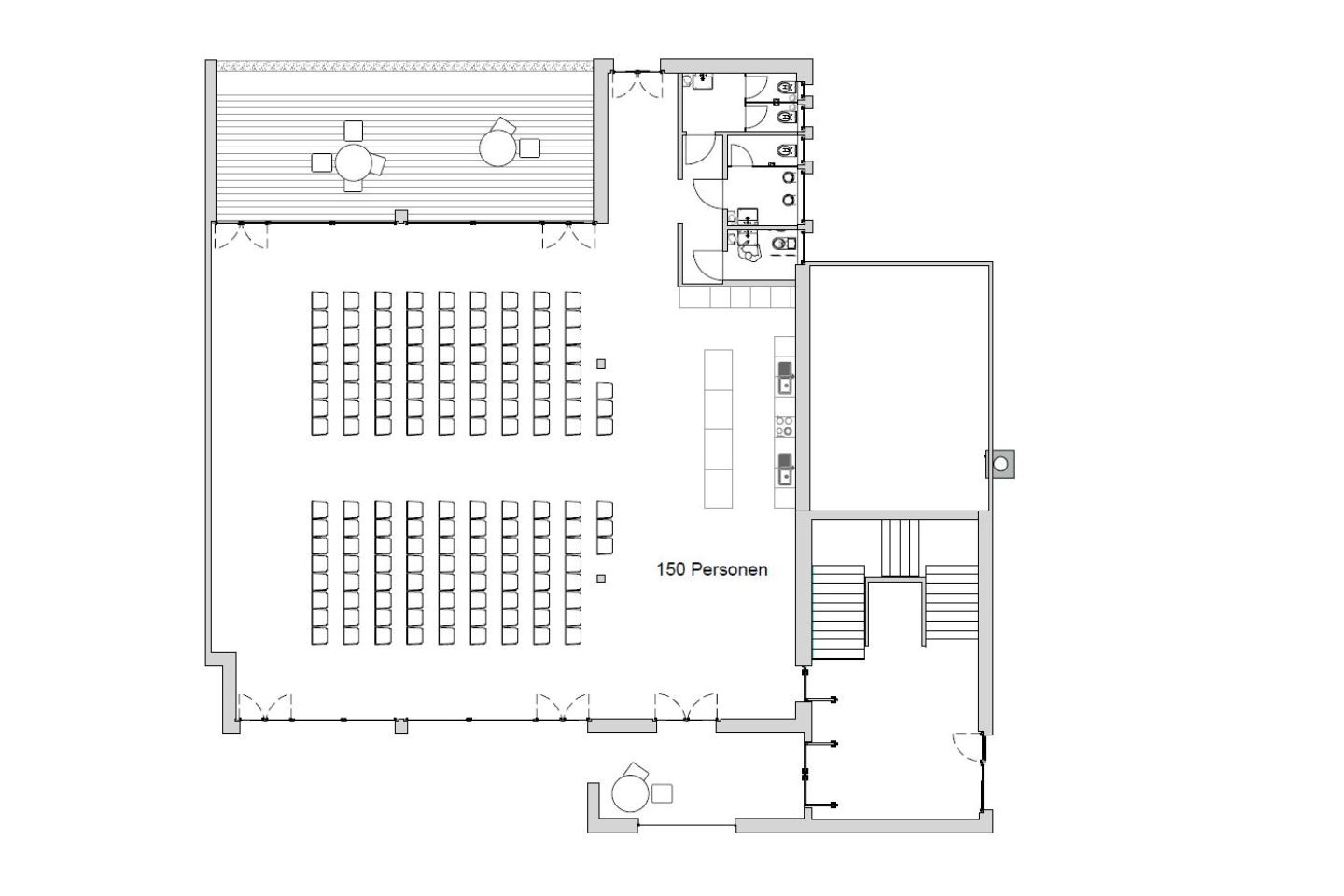
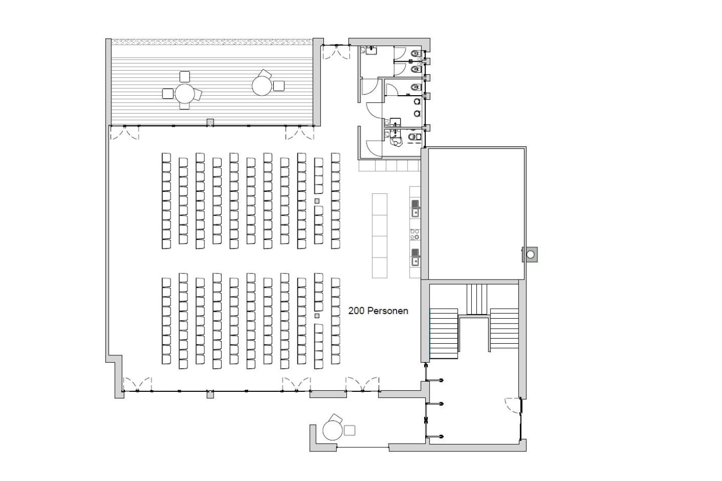
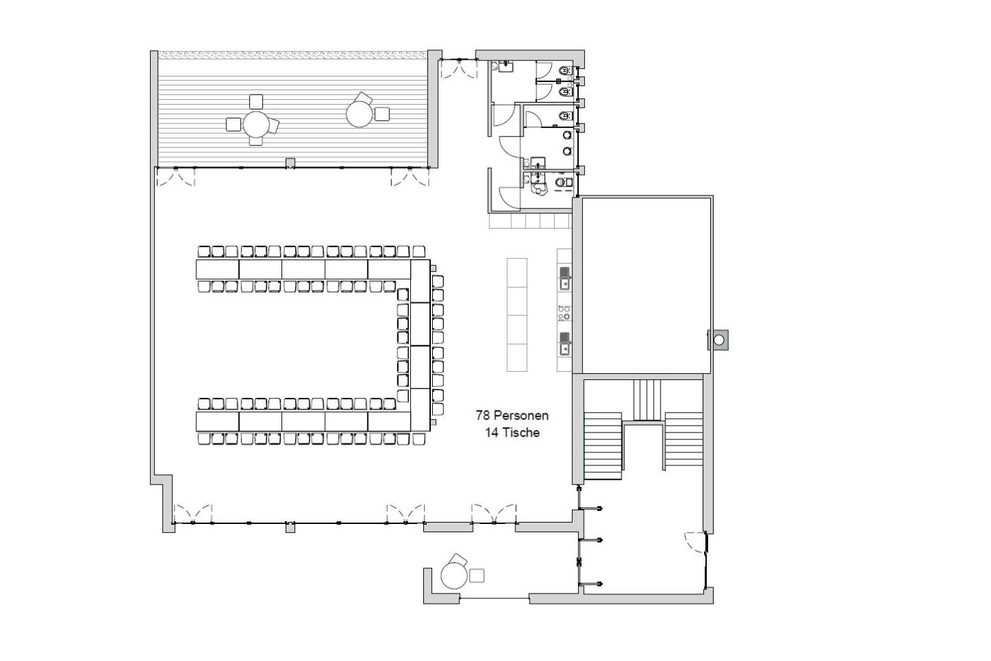
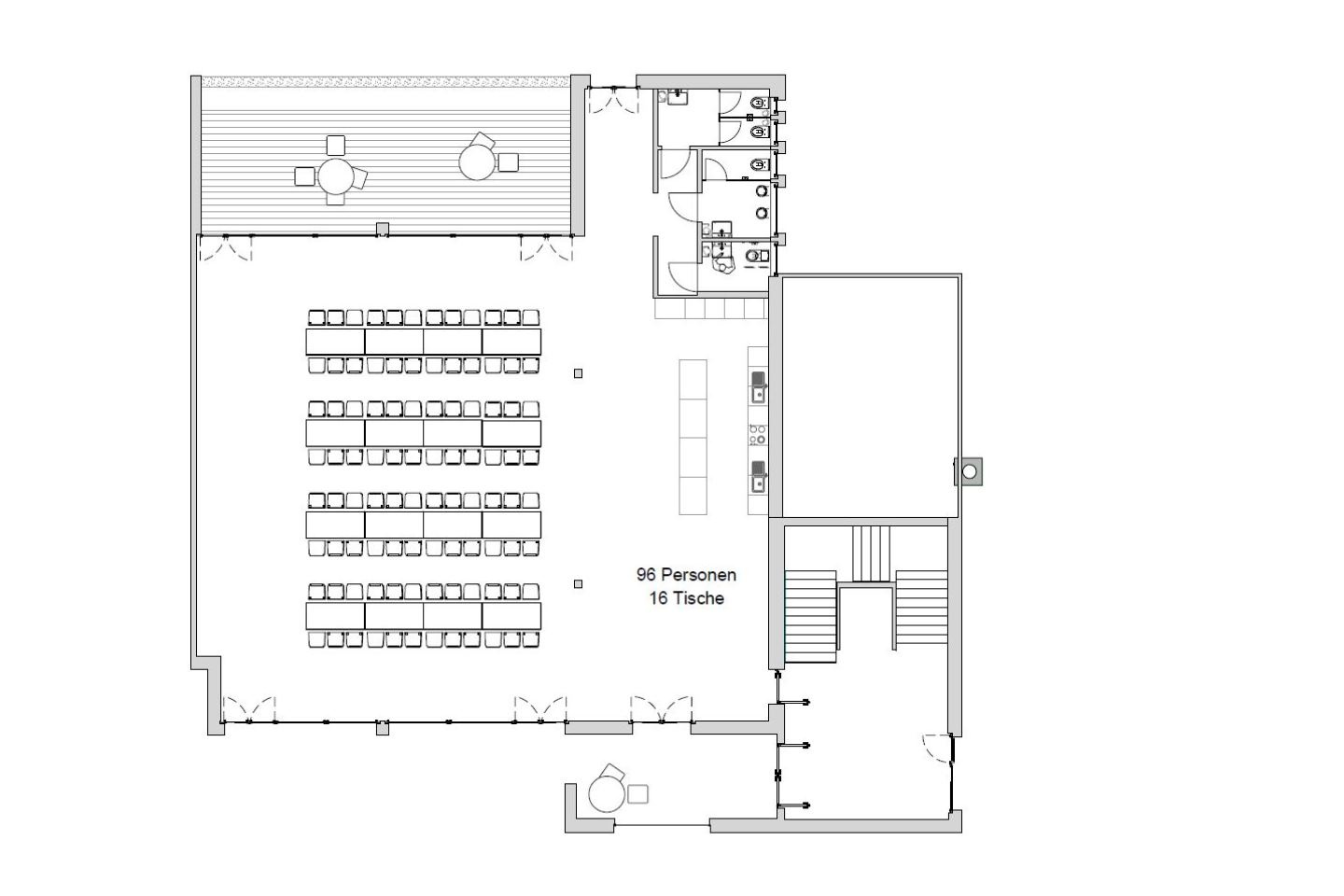
Eventraum im FachWerk
Unser heller Attika Eventraum im 4. Stock über dem FachWerk der Beer Holzbau AG, Ostermundigen, ist ideal für Sitzungen, Kurse, Schulungen, Feiern und vieles mehr.
Der komplett ausgestattete Eventraum inkl. moderner Küche, Mobiliar und Zubehör wurde im 2017 eröffnet. Der Raum ist hindernisfrei mit einem Lift zugänglich und die Toiletten sind behindertengerecht. Die grossen Balkone bieten zudem eine herrliche Aussicht auf die Berner Alpen. Mit dem öffentlichen Verkehr ist die Location gut erreichbar, zudem stehen je nach Bedarf Parkplätze vor Ort zur Verfügung.
Elisabeth Beer gibt Ihnen gerne Auskunft: T 031 930 16 52

